CM04384 ขายดาวน์ คอนโด เคฟ วันเดอร์แลนด์ Kave wonderland ตรงข้ามม.ธรรมศาสตร์ รังสิต ถ.เชียงราก

รายละเอียดเพิ่มเติม

CM04384 ขายดาวน์ คอนโด เคฟ วันเดอร์แลนด์ Kave wonderland ตรงข้ามม.ธรรมศาสตร์ รังสิต ถ.เชียงราก ต.คลองหนึ่ง อ.คลองหลวง จ.ปทุมธานี

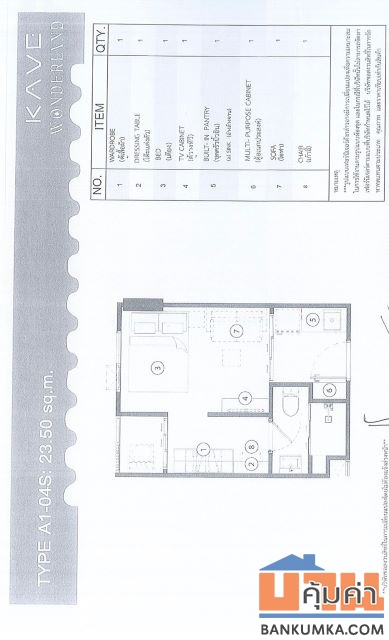
อาคาร A ชั้น 8 วิวสระ 1 ห้องนอน 1 ห้องน้ำ เนื้อที่ 23.50 ตร.ม.



ขายสิทธิ์ก่อนโอน 245,000 บาท (ราคานี้ให้สำหรับผู้พร้อมโอนสิทธิ์ มีผู้สนใจสอบถามอยู่ หากตกลงได้ก่อนให้สิทธิ์ทันทีต่อรองได้นิดหน่อย)
ราคาหน้าสัญญา 2,010,000 ล้านบาท
ดาวน์ครบเเล้ว 19 งวด รวมเป็น 126,400 บาท
ผู้ซื้อจ่ายวันโอน 1,543,600 บาท

** ห้องนี้ได้ ส่วนลดตามสัญญาเดิมสูงถึง 340,000 บาท ห้องเปิดขายใหม่จากโครงการ ไม่ได้ส่วนลดขนาดนี้แล้วห้องนี้เป็นโควตาราคาเก่า**
-ได้สิทธิ์ห้องในราคาที่ผู้ขายได้เงื่อนไขส่วนลดจากโครงการ
-ผู้ซื้อ ไม่ต้องผ่อนดาวน์เพิ่ม
-ดำเนินการกู้และโอนกับโครงการโดยตรง

***จุดเด่น***

-ตึกเเรกสุดของโครงการ เดินทางสะดวก เหมาะอยู่อาศัยเองหรือลงทุน
-ราคานี้หาไม่ได้จากห้องเปิดขายใหม่
-เอกสารครบ เปลี่ยนชื่อผู้จะโอนได้

-โอนสิทธิ์ตามเงื่อนไขโครงการ

*การเดินทาง*

-ถนนเชียงราก ถนนคลองหลวง ถนนพหลโยธิน ทางพิเศษอุดรรัถยารถไฟฟ้าสายสีแดง สถานีรังสิต

*สิ่งอำนวยความสะดวก*

อาคาร A

-ชั้น 1 Juristic, Lobby A, Vending machine, Co-working space, Mail box, Restroom & Locker และ Laundry

-ชั้น 6 Sky co-working มีทางเดินเชื่อมไป Building F

*สถานที่สำคัญใกล้เคียง*

-ยู-สแควร์ TU Dome Plaza ตลาดไท Makro คลองหลวง Lotus’s คลองหลวง Mingle Mall Imagine Village

-Park Avenue บุญถาวร รังสิต เมกาโฮม รังสิต ไทวัสดุ รังสิต Automall รังสิต Major รังสิต Lotus’s นวนคร Big C นวนคร Future Park รังสิต

-ม.ธรรมศาสตร์ ศูนย์รังสิต รร.สาธิตฯ ม.ธรรมศาสตร์ ม.กรุงเทพ รร.ธรรมศาสตร์คลองหลวงวิทยาคม รร.หอวังปทุมธานี

-รพ.ธรรมศาสตร์เฉลิมพระเกียรติ รพ.ธนบุรีบูรณา (Jin Wellbeing County) รพ.ภัทร-ธนบุรี รพ.การุญเวช ปทุมธานี รพ.เปาโลรังสิต

-สวทช. ที่ว่าการ อ.คลองหลวง โรงไฟฟ้าคลองหลวง นิคมอุตสาหกรรมนวนคร Work Point โรงกษาปณ์

*สนใจติดต่อได้ที่ 086-802-5609 คุณป๊อบ line 0868025609*

*บริการรับฝากขาย เช่า บ้าน ที่ดิน คอนโด และอสังหาริมทรัพย์ทุกประเภท ฟรีค่าคอมมิชชั่น กรณีเจ้าของขายเอง Show More

สิ่งอำนวยความสะดวก

  • สระว่ายน้ำ
  • ฟิตเนส
  • สวนส่วนกลาง
  • เจ้าหน้าที่รักษาความปลอดภัย
  • กล้องวงจรปิด
  • สนามเด็กเล่น
  • ห้องสมุด
  • ร้านค้า
  • ลิฟต์

รายงานปัญหาเกี่ยวกับประกาศนี้

ลงประกาศโดย

ป๊อบ วงศ์

0868025609

0868025609

ดูประกาศอื่นๆ ของสมาชิกท่านนี้

ประกาศที่อยู่ใกล้เคียง

ให้เช่าคอนโด นวนครลิฟวิ่งเพลส (Nawa Nakhon Living Place) ชั้น 6 ราคาให้เช่า 2,900.00 บาท/เดือน รวมส่วนกลาง คอนโดแถวนวนคร

ขาย 300,000 บาทเช่า 2,900 บาท/เดือน

ด่วนคอนโด Zoom Condo Place (Zoom 49) ทำเลใกล้มหาวิทยาลัย คลองหลวง ปทุมธานี

ขาย 999,000 บาท

ขาย!! คอนโด เคฟ ทาวน์ ชิฟท์ ซอยข้าง ม.กรุงเทพ รังสิต (ขนาด 27 ตร.ม. เฟอร์นิเจอร์ครบ) คลองหนึ่ง คลองหลวง ปทุมธานี

ขาย 2,290,000 บาท

ขายคอนโด Zoom Condo Place 49 คลองหลวง ปทุมธานี ใกล้ ม.กรุงเทพ รังสิต

ขาย 999,000 บาท

ให้เช่าคอนโด เคฟ ทาวน์ ชิฟท์ ถนนพหลโยธิน คลองหลวง ปทุมธานี

เช่า 13,500 บาท/เดือน

ให้เช่าคอนโด เคฟ ทาวน์ โคโลนี ถนนพหลโยธิน คลองหลวง ปทุมธานี

เช่า 12,500 บาท/เดือน

ขาย/ให้เช่า Kave Condo (เคฟ คอนโด) 25.69 ตร.ม. อาคาร B ชั้น 6 ติดถนนใหญ่พหลโยธิน ตรงข้าม ม.กรุงเทพ วิทยาเขตรังสิต โทร 08

ขาย 2,200,000 บาทเช่า 11,000 บาท/เดือน

ให้เช่าทาวน์โฮม หลังมุม 26 ตรว. พื้นที่ข้างบ้านกว้าง 2 เมตร เจษฎา 11 รังสิต คลอง 2 ใกล้นิคมนวนคร เดินทางสะดวก

เช่า 9,000 บาท/เดือน

X

SHARE

Share Tweet Share

คำนวณการขอสินเชื่อ

เงินต้น/เงินกู้ (บาท)
สินเชื่อแบบ
จำนวนปีที่กู้
อัตราดอกเบี้ยต่อปี %
วันที่เริ่มสินเชื่อ

เงินต้น+ดอกเบี้ย -

ดอกเบี้ย -

ชำระเดือนละ -

Data Loading...
Data Loading...
ปี ค.ศ. ค่างวด เป็นดอกเบี้ย เป็นเงินต้น เงินต้นคงเหลือ คงเหลือทั้งหมด
ปี ค.ศ. ค่างวด เป็นดอกเบี้ย เป็นเงินต้น เงินต้นคงเหลือ คงเหลือทั้งหมด
X
BanKumKa.Com เป็นเว็บไซต์ศูนย์กลางสำหรับซื้อ-ขายอสังหาริมทรัพย์ของประเทศไทย ด้วยข้อมูลที่พร้อมทั้งคอนโดมิเนียม บ้านเดี่ยว ทาวน์เฮ้าส์ อาคารพาณิชย์ และที่ดิน ไม่ว่าจะเป็นโครงการใหม่หรือบ้านมือสอง อีกทั้งบทความและข่าวสารที่เกี่ยวกับอสังหาริมทรัพย์ เพื่อให้คุณได้คัดสรรทรัพย์ที่ดีที่สุดได้ในเว็บไซต์ BanKumKa.com ที่เดียว
เว็บไซต์ BanKumKa.Com มีการเก็บ Cookies ซึ่งเป็นการจัดการข้อมูลส่วนบุคคลและช่วยเพิ่มประสิทธิภาพการใช้งานเว็บไซต์ สามารถอ่านข้อมูลเพิ่มเติมได้ที่หน้า นโยบายความเป็นส่วนตัว ยอมรับ